Дом в поселке Певчее, 702 м2

Цена: 79 990 000 руб.
Код объекта: 514-129

Новый просторный дом под чистовую отделку (white box) с собственным бункером. Архитектура дома, выполненная в классическом стиле, впечатляет округлыми формами фасада с колонным декором и большой площадью террас. В элегантной планировке – высокие потолки, двухмаршевая лестница, изящные полукруглые эркеры, множество окон и просторные помещения. Среди них запланированы гостиная с камином, игровая, библиотека, квартира для персонала. Все спальни – с собственными санузлами, мастер-спальня дополнена будуаром. На жилом цокольном этаже – спа-зона, включающая бассейн, сауну и хамам. Также есть мансардный этаж. Дом стоит на участке, расположенном на второй линии от леса в престижной тихой локации охраняемого коттеджного посёлка.

Общая площадь строений: 702 м2
Количество уровней: 4
Спален: 5. Опции: бассейн; машиномест крытых: 2, в т.ч. в теплом гараже: 2; сауна; квартира для персонала; терраса; камин; холодный подвал; бункер в доме.
Материал стен: газобетон
Облицовка стен: штукатурка
Стадия готовности: под чистовую отделку (white box)
Цоколь: холл 20 кв.м, бассейн 11 кв.м, предбанник 7 кв.м, сауна 6,5 кв.м, хамам 5 кв.м, комната отдыха 41,5 кв.м, санузел 10 кв.м, спальня 19 кв.м с санузлом 3,5 кв.м, коридор 8 кв.м, тамбур 4 кв.м, подсобное помещение 10 кв.м, электрощитовая 10 кв.м, бельевая 7 кв.м, котельная-постирочная 5 кв.м, холодная кладовая 26 кв.м, коридор между кладовыми 15 кв.м, кладовая 16 кв.м, погреб 9 кв.м
1-ый этаж: холл-прохожая 13 кв.м, гостиная 43,5 кв.м, столовая 18 кв.м с выходом на террасу 40 кв.м, кухня 15,5 кв.м, игровая 23 кв.м, спальня 26 кв.м с санузлом 3,5 кв.м, библиотека 16 кв.м, санузел 6 кв.м, коридор между гаражом и кухней 7 кв.м, гараж 48,5 кв.м, терраса 17,5 кв.м, балкон 14,5 кв.м, балкон 4,5 кв.м
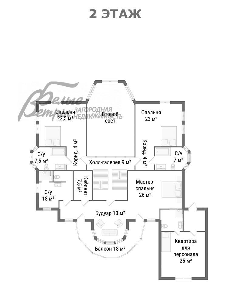
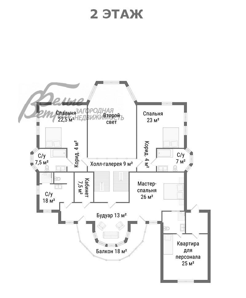
2-ой этаж: холл-галерея 9 кв.м, мастер-спальня 26 кв.м с будуаром 13 кв.м, санузлом 18 кв.м, выходом на балкон 18 кв.м, кабинет 7,5 кв.м, детская мастер-спальня 22,5 кв.м с прихожей 4 кв.м, санузлом 7,5 кв.м, выходом на балкон (над вторым светом) 14,5 кв.м, детская мастер-спальня 23 кв.м с прихожей 4 кв.м, санузлом 7 кв.м, выходом на балкон, квартира персонала с отдельным входом по лестнице с улицы 25 кв.м
3-ий этаж: мансардный этаж: площадь свободного назначения 163,5 кв.м
Описание внутренней отделки: дом – в стадии предчистовой отделки (white box). Стены выровнены и подготовлены под покраску или оклейку обоями. По всем помещениям выполнена стяжка пола. В санузлах, на кухне, в прихожей и в других зонах, где планируется укладка плитки, смонтированы системы тёплых полов. Установлена монолитная железобетонная двухмаршевая лестница. Дверные проёмы заложены высотой 2,2 м, что визуально увеличивает объём внутренних помещений. Электрика разведена по всему дому — подготовлены точки под розетки, выключатели и освещение. Сделана комплексная разводка отопления по всем этажам, поставлены радиаторы. Подготовлены точки и разводка под установку сантехники, а также смонтированы инсталляции для монтажа навесной сантехники. Потолки также подготовлены под монтаж натяжных конструкций. В гостевой комнате установлены высококачественные акриловые подоконники
Инженерное обеспечение: в доме полностью разведены все основные инженерные системы, включая газоснабжение, водоснабжение, канализацию и электроснабжение. Для обеспечения отопления установлен котёл, а для горячего водоснабжения — бойлер косвенного нагрева ёмкостью 500 л. Выполнена предварительная подготовка под монтаж системы очистки воды. В здании обустроены технологические шахты (закладные) для последующей установки приточно‑вытяжной вентиляционной системы. В части безопасности смонтирована охранная система с сигнализацией, при этом объект находится под охраной Росгвардии; также выполнены закладные элементы для размещения камер видеонаблюдения. Кроме того, установлено слаботочное оборудование, в том числе серверные устройства

Участок

Площадь участка, соток: 20
Тип участка: без деревьев
Благоустройство участка: вокруг дома выполнена дренажная система с трёхуровневой схемой дренажа

Полная информация об объекте в поселке Певчее

Фото


Планировки