Таунхаус в поселке Ели, 308 м2

Цена: 34 000 000 руб.
Код объекта: 151-457

Просторный и светлый кирпичный таунхаус, построенный в стиле классического минимализма. Дом полностью готов к заселению: все коммуникации введены в эксплуатацию, сделан косметический ремонт в светлых тонах, установлен кухонный гарнитур, кровати и сантехника. Комфортная планировка включает большое количество спален, функциональный жилой мансардный этаж и уютную террасу, где можно наслаждаться отдыхом на свежем воздухе. Дом стоит на компактном облагороженном участке, не требующем вложений, в окружении лесного массива. Стародачный коттеджный посёлок застроен в едином стиле, с круглосуточной охраной, центральными коммуникациями – он находится в живописном месте рядом с городской инфраструктурой.

Общая площадь строений: 308 м2
Количество уровней: 3
Спален: 5. С/узлов: 4. Комнат всего: 7.
Опции: машиномест крытых: 2, в т.ч. в теплом гараже: 1; терраса.
Материал стен: кирпич
Облицовка стен: кирпич
Стадия готовности: меблирован
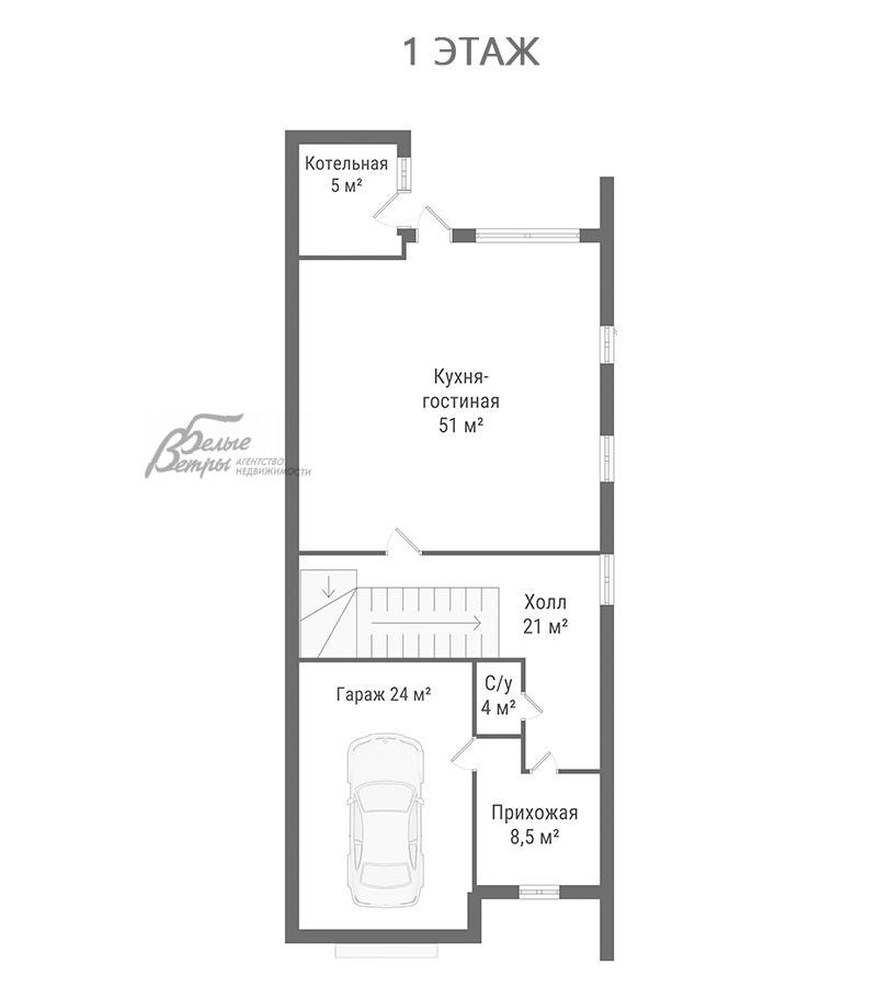
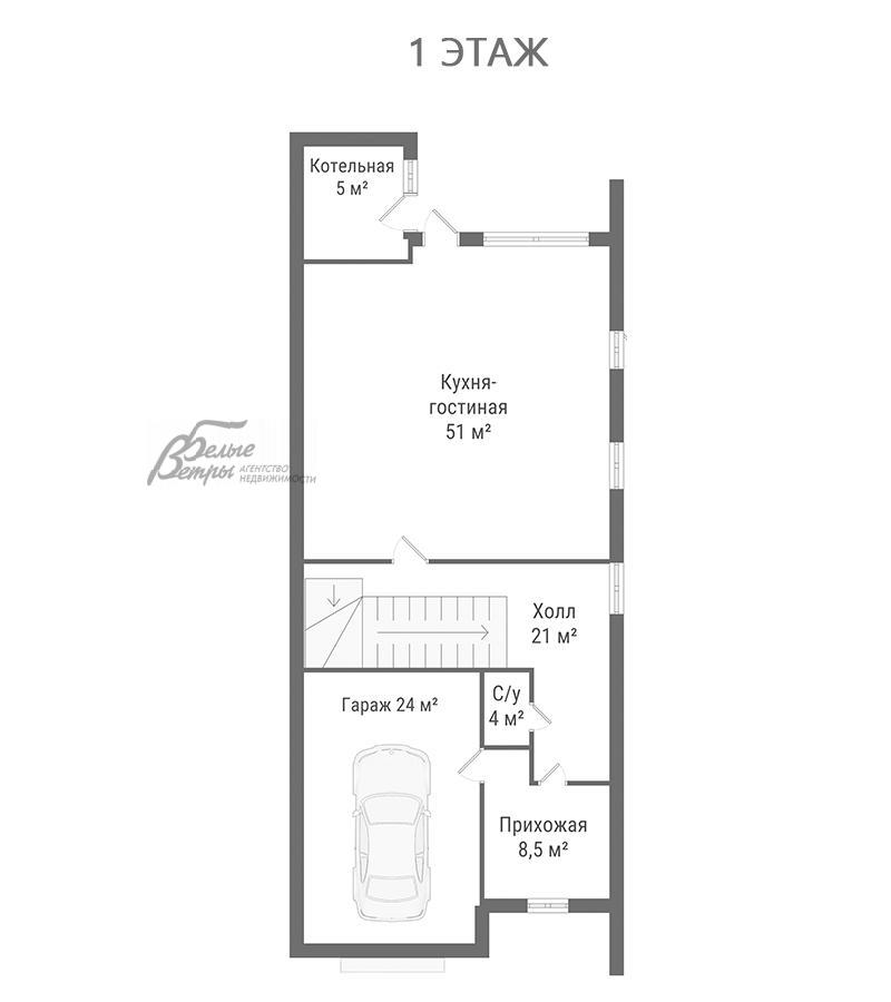
1-ый этаж: прихожая 8,5 кв.м, холл 21 кв.м, кухня-гостиная 51 кв.м, санузел 4 кв.м, котельная 5 кв.м, гараж 24 кв.м
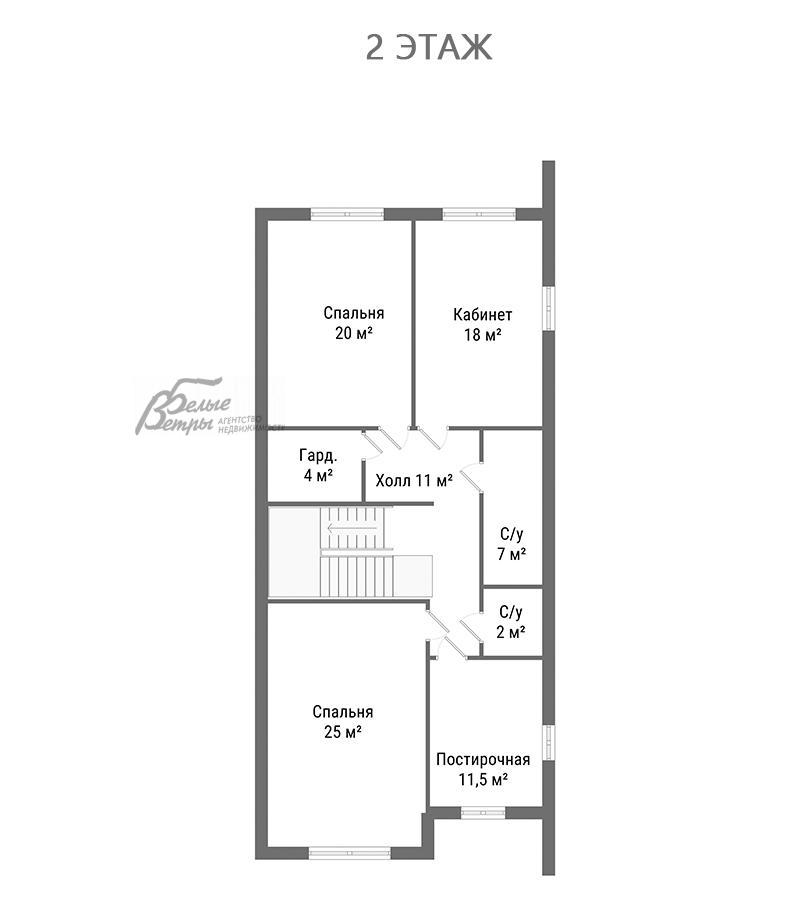
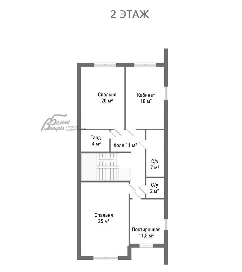
2-ой этаж: холл 11 кв.м, спальня 25 кв.м, спальня 20 кв.м, кабинет 18 кв.м, гардеробная 4 кв.м, санузел 7 кв.м, санузел 2 кв.м, постирочная 11,5 кв.м
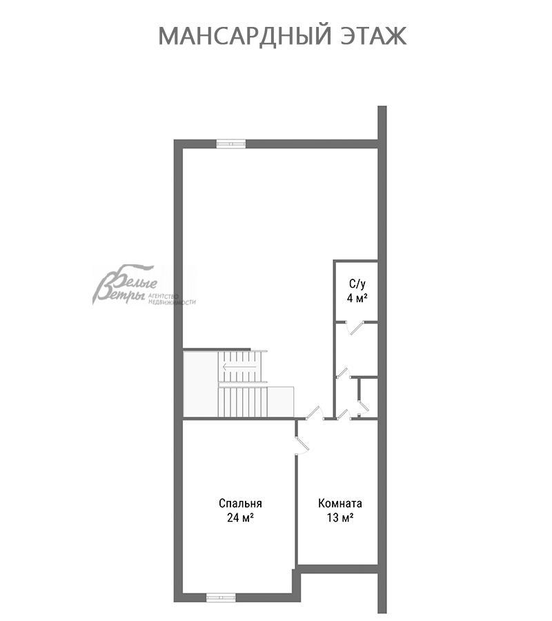
3-ий этаж: мансардный этаж: спальня 24 кв.м, комната 13 кв.м, санузел 4 кв.м
Описание внутренней отделки: выполнен косметический ремонт в светлой гамме с яркими цветовыми акцентами. Каждая комната отличается собственным оттенком оформления, который гармонично сочетается с общей цветовой концепцией интерьера. Дизайн изящно дополняют элементы стиля ар-деко. В спальнях стены оклеены обоями, в остальных помещениях – окрашены. Полы в санузлах, холле, кухне и гараже оформлены керамической плиткой, в спальных комнатах — паркетная доска и ламинат. Потолки на 1-м и 2-м этажах натяжные, а на мансардном – многоуровневые. На верхние этажи ведёт железобетонная монолитная лестница с деревянными ступенями. Установлены деревянные двери в цвете венге
Инженерное обеспечение: выполнена электроразводка с подключением всех розеток под ключ. Отопление – через газовый котел Buderus Logano G234. Для обеспечения горячего водоснабжения – бойлер косвенного нагрева Buderus объемом 200 л. Установлен фильтр грубой очистки воды
Мебель, оборудование: в кухне установлен гарнитур, в одной из спален – 2 кровати. В санузлах – импортная сантехника

Участок

Площадь участка, соток: 3.2
Тип участка: без деревьев
Благоустройство участка: участок облагорожен, на нём высажен газон

Полная информация об объекте в поселке Ели

Фото


Планировки